Haus VARIO
Beim VARIO-Haus erhält jeder SuS unterschiedliche Eingangswerte (basierend auf den Arbeiten von Norbert Wiese, Friefdrich-Dessauer-Schule, Limburg).Die umfangreiche EXCEL-Datei erzeugt je nach Variationsnummer einen neuen Satz an Materialien und Aufgaben, die als PDF abgespeichter und ausgeteilt werden können. Die hier aufgeführte VarNr. (42312) wurde nicht in die möglichen Ausgaben übernommen.
Für die PDFs muss ein PFAD definiert werden, der auch existiert ;-)
Beispiel
Material 1
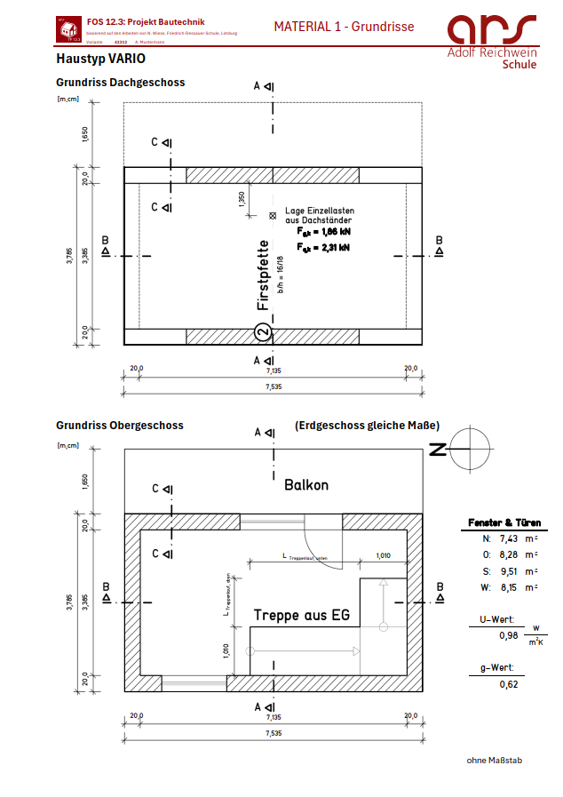
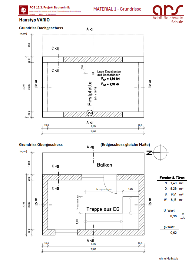
FOS12 Projekt - Haus Vario (42312 A. Mustermann) - MATERIAL 1 - Grundrisse.pdfMaterial 2
FOS12 Projekt - Haus Vario (42312 A. Mustermann) - MATERIAL 2 - Schnitte.pdf
Material 3
Aufgaben - TF1: Statik
Zeiten (geplant): 1.1: 90 Min, 1.2 180 Min, 1.3 90 Min
FOS12 Projekt - Haus Vario (42312 A. Mustermann) - AUFGABEN Themenfeld 12.1 - Statik.pdf




